縦葺き屋根材(住宅用金属屋根)

すっきりとした美しいラインと高い防水性を両立

縦葺き屋根は、シンプルで直線的なデザインが特徴の住宅用金属屋根です。
継ぎ目が少なく雨水の流れに優れるため、防水性に優れ、現代住宅に適した工法として広く採用されています。
住宅の外観を引き締め、洗練された印象を与えます。

❚ 縦葺き屋根の特長

■ すっきりとした外観
直線的で無駄のないデザインが住宅全体を引き締めます。

■ 高い防水性
雨水の流れに沿った構造により、優れた防水性能を発揮します。

■ メンテナンス性
シンプルな構造で、長期的な維持管理にも配慮されています。

❚ 型式一覧

型式 働き巾 山高 板厚範囲
アールルーフ 371mm 20mm 0.5〜0.6mm
パネルルーフ 373mm 20mm 0.5〜0.6mm
スリムルーフ タテヒラ 363mm 40mm 0.5〜0.6mm
スリムルーフ カワラボウ 420mm 65mm 0.5〜0.6mm
ラウンドルーフ420 丸・角 420mm 42mm 0.5mm
ラウンドルーフ420 瓦棒 418mm 35mm 0.35〜0.6mm
立平葺き 249~400mm 15mm 0.35~0.6mm
可変式立平葺き 217~376mm 28mm 0.35〜0.5mm

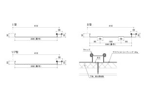
❚ 働き巾の違い

断面図

❚ 製品ラインアップ

アールルーフ

独自の嵌合接合によりワンタッチ施工を可能とした屋根材。

■施工性や美観を兼ね備えた嵌合タイプの屋根材
■従来の立平葺にリブを付けることで強度を高め、強風による屋根板の浮き上がりや板鳴り現象を防止します
■上から踏み込むだけのワンタッチ施工で優れた施工性を発揮します
■ハゼにリブが加わり、反射光の発散により美観性を向上させます
■下地合板・木毛板に曲面板を使用することで湾曲屋根にも対応します
■ホットメルト止水材(オプション)使用で安心の防水性を実現します

❚ 設計参考仕様

使用原板厚 0.5~0.6
使用原板巾 455mm
裏張材巾 375mm
働き巾 371mm
材料 カラーGL、フッ素GL、鋼板、カラーアルミ、アルスター鋼板、他各種鋼板
軒付 捨付本唐草、湾曲部はアール絞り本唐草
自然曲率半径 5mまで可能
成型最短寸法 900mm

勾  配:1/50以上 
実際の諸条件により、使用できる板厚が異なります。事前にご相談ください。

パネルルーフ

あらゆる建築に対応可能な嵌合タイプの外装材。

■木造・S造・RC造すべてに対応した屋根材
■凹凸のない平滑な表面で高い美観性を実現
■屋根・壁・パラペットなど幅広い用途に対応
■勾配屋根、陸屋根、ベランダにも対応可能
■上から踏み込むだけのワンタッチ施工で優れた施工性を発揮
■断熱材使用により断熱性・保温性・遮音性を発揮
■ジョイント部に編成コーキングを充填する密閉構造で寒冷地にも対応

❚ 設計参考仕様

使用原板厚 0.5~0.6
使用原板巾 457mm
裏張材巾 373mm
働き巾 373mm
材料 カラーGL、フッ素GL、鋼板、カラーアルミ、アルスター鋼板、他各種鋼板
軒付 捨付本唐草
パネル断熱材 木毛板、スタイロフォーム厚さ20㎜
成型最短寸法 900mm

勾  配:1/50以上 
実際の諸条件により、使用できる板厚が異なります。事前にご相談ください。

スリムルーフ タテヒラ

完全嵌合式による施工性と意匠性を兼ね備えた立平葺き屋根材。

■ハゼ締め不要の完全嵌合式立平葺き
■小曲率半径(5m)が可能で多彩な意匠性に対応(逆R成型も可能)
■ボルトレス工法により施工が簡単
■熱による屋根材の伸縮に強い工法
■従来のハゼ式工法の欠点を解消した美観性に優れた製品
■様々な素材による成型が可能
■ホットメルト止水材(オプション)使用で安心の防水性を実現

❚ 設計参考仕様

使用原板厚 0.5~0.6
使用原板巾 455mm
裏張材巾 360mm
働き巾 363mm
材料 カラーGL、フッ素GL、カラーアルミ
成型最短寸法 1150mm

勾  配:5/100以上 

スリムルーフ カワラボウ

意匠性と施工性を兼ね備えた完全嵌合式の瓦棒葺き屋根材。

■ハゼ締め不要の完全嵌合式瓦棒葺き
■円筒キャップによる上品な仕上がり
■吊子によるワンタッチ施工で優れた施工性を発揮
■マイキャップ使用により家紋・社章・ロゴなどのデザイン加工が可能
■屋根表面はフラット加工・リブ加工の2タイプから選択可能
■縦リブ成型により水の流れ・汚れ防止に優れ、美観と耐久性を向上

❚ 設計参考仕様

使用原板厚 0.5~0.6
使用原板巾 455mm
裏張材巾 360mm
働き巾 420mm
材料 カラーGL、フッ素GL、カラーアルミ
成型最短寸法 1150mm

勾  配:5/100以上 

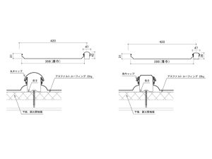
ラウンドルーフ420 丸・角

施工性と経済性に優れた嵌合型の瓦棒葺き屋根材。

■キャップを小さくしたハゼ締め機不要の嵌合型瓦棒葺き
■スリムルーフカワラボウを小型化した屋根材
■屋根表面はフラット加工・リブ加工の2タイプから選択可能
■半径5mまでのR成型が可能
■裏貼材にポリスチレンフォーム4mmを使用し高い断熱性を発揮

❚ 設計参考仕様

使用原板厚 0.5
使用原板巾 455mm
裏張材巾 360mm
働き巾 420mm
材料 カラーGL、フッ素GL、銅板、カラーアルミ
成型最短寸法 820mm

勾  配:5/100以上 

ラウンドルーフ420 瓦棒

シンプルで汎用性の高いスタンダードな縦葺き工法。

■シンプルでスタンダードな縦葺き工法
■棟から軒先まで1枚の金属板を使用し、緩勾配屋根にも対応可能
■雨仕舞に優れ、加工性が高く様々な屋根形状に対応
■Ⅰ型・Ⅱ型のほか表面リブ加工にも対応

❚ 設計参考仕様

使用原板厚 0.35~0.6 ※
使用原板巾 455mm
裏張材巾 380mm
働き巾 418mm
材料 カラーGL、フッ素GL、銅板、カラーアルミ
成型最短寸法 750mm

勾  配:5/100以上 
※カラーGL/フッ素GL/銅板 0.3~0.5、カラーアルミ 0.4~0.6

立平葺き

経済性と施工性に優れたスタンダードな縦葺き屋根。

■経済性と施工性を高めた定番工法
■働き巾は最小249mm~最大400mmまで可変成型が可能
■住宅から工場・倉庫まで幅広い建造物に対応
■シンプルな構造で施工が容易
■ホットメルト止水材(オプション)使用で安心の防水性を実現

❚ 設計参考仕様

使用原板厚 0.35~0.6 ※
使用原板巾 304~455mm
裏張材巾 247~398mm
働き巾 249~400mm
材料 カラーGL、フッ素GL、銅板、カラーアルミ
成型最短寸法 850mm

勾  配:5/100以上 
※カラーGL/フッ素GL/銅板 0.3~0.5、カラーアルミ 0.4~0.6

可変式立平葺き

意匠性と防水性を高めた可変式立平葺き屋根。

■意匠性・防水性をさらに追求した屋根材
■働き巾は最小217mm~最大376mmまで可変成型が可能
■山高を高く設計し、陰影を強調した外観を演出
■シンプル構造で施工性と経済性を確保
■ホットメルト止水材(オプション)使用で安心の防水性を実現

❚ 設計参考仕様

使用原板厚 0.35~0.5 ※
使用原板巾 303~455mm
裏張材巾 215~374mm
働き巾 217~376mm
材料 カラーGL、フッ素GL、銅板、カラーアルミ
成型最短寸法 850mm

勾  配:5/100以上 
※カラーGL/フッ素GL 0.35~0.5、銅板 0.3~0.5、カラーアルミ 0.4

カタログダウンロード

📘 総合カタログ(PDF)をダウンロード

お問い合わせ

製品仕様・施工方法・お見積りなど、お気軽にご相談ください。

📩 お問い合わせフォームへ
上部へスクロール